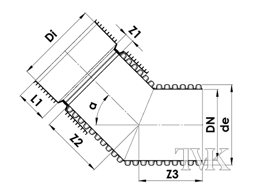
Чертеж. Колено InCor, 45°.

| DN / α, мм / ° | De | Di | L1 | Z1 | Z2 | Z3 |
| 160 / 45° | 170 | 172 | 101 | 11 | 110 | 165 |
| 200 / 45° | 227 | 230 | 110 | 60 | 225 | 225 |
| 250 / 45° | 283 | 286 | 137 | 62 | 262 | 262 |
| 300 / 45° | 340 | 344 | 150 | 64 | 314 | 314 |
| 400 / 45° | 453 | 458 | 200 | 70 | 393 | 393 |
| 500 / 45° | 567 | 574 | 262 | 74 | 528 | 528 |
| 600 / 45° | 680 | 686 | 270 | 80 | 660 | 660 |
| 800 / 45° | 906 | 910 | 335 | 50 | 720 | 910 |
| 1000 / 45° | 1160 | 1166 | 435 | 50 | 1040 | 1300 |
*Компания InstalPlast Łask оставляет за собой право вносить изменения в техническую документацию без предварительного уведомления. Данные о геометрических размерах носят информативный характер и могут быть изменены.